Návrh: Ing. arch. Tomáš Tankó

2023 - architektonická studie
2024 - realizace stavby
Navrhování koupelny je vždy kombinací estetiky a praktičnosti. V menších prostorech hraje zásadní roli každý detail – od umístění sprchy a vany, přes výběr obkladů, až po to, kde se bude nacházet topný žebřík nebo pračka. Cílem je najít řešení, které bude funkční, vizuálně čisté a zároveň maximálně využije dispozici místnosti.
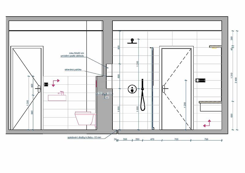
Velkým tématem bývá sprchový kout. Často se zvažuje, zda zvolit walk-in variantu, nebo raději klasické dveře, které pomohou udržet teplo i vodu uvnitř. Stejně tak důležitý je způsob odvodnění – ať už formou zapuštěné vaničky, nebo elegantního podlahového žlabu. V obou případech je klíčové zachovat jednotnou podlahu, která prostor opticky zvětší.
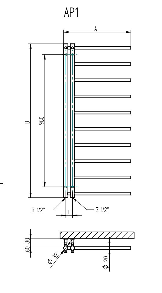
Součástí návrhu je také řešení úložných prostor a umyvadlové desky, ideálně v kombinaci s přírodním materiálem, který koupelně dodá teplo a charakter. Neopomenutelnou roli hraje i design radiátoru, protože často stojí přímo v pohledu při vstupu. Každý prvek se proto vybírá tak, aby výsledkem byl nejen praktický, ale i harmonický prostor, kde se budete cítit dobře každý den.
Původní stav koupelny
Architektonická studie ve variantách
Varianta 1 - sprchový kout a pračka v technické místnosti
Varianta 2 - sprchový kout a pračka v koupelně
Varianta 3 - vana a pračka v technické místnosti
Výběr konkrétních prvků vybavení
Vizualizace pro výběr obkladů a dlažby
Bricola miel + Fineza Vision
Fineza Canyon gold + Fineza Whitewood
Stylnul Nobile miel + Multi Elesa
Spárořezy k finálnímu upřesnění detailů
A už zbývá jenom dekorace

Mohlo by se vám také líbit

Back to Top