V roce 2023 nás oslovila mladá rodina s poptávkou na rekonstrukci 2+1 panelákového bytu. Během naší architektonické studie jsme úspěšně navrhli přeměnu bytu na 3+kk. Nově vytvořená místnost umožnila nejmladšímu členu rodiny získat vlastní pokoj. Po pečlivém zvažování jsme se rozhodli, že by bylo vhodné náš návrh zveřejnit.
V mnoha případech se podobné rekonstrukce provádějí neodborně nebo bez informování stavebních úřadů, což může ohrozit nosný systém domu a jeho statiku. Naše řešení využívá pouze příčky, zatímco nosné panely zůstávají beze změn.
Předpokládáme, že domy byly původně postaveny podle stejných plánů, avšak realita může být jiná, a půdorysy bytů se mohou od sebe lišit. Pokud zjistíte, že plány na ten váš byt nepasují, budu moc rád, když se nám ozvete.
PANELÁKY V TŘEBÍČI
Snažil jsem se rozlišit jednotlivé typy panelových domů podle velikosti, počtu oken a umístění balkonů. Pro lepší orientaci jsem připravil mapu Třebíče. Je však třeba poznamenat, že jde pouze o hrubý odhad, protože balkony jsou v mnoha případech umístěny odlišně než v původních dokumentech, které mám k dispozici.
Například z venku je těžké rozlišit mezi typy 472 a 472A, přestože se jedná o zcela odlišné uspořádání bytů. Typ 472 zahrnuje tři různě velké byty - 1+1, 2+1 a 3+1. Naopak 472A, který zvenku vypadá naprosto stejně, obsahuje tři byty 2+1.
TYP T06B - KDU
Panelové bytové domy typu T06B - KDU byly postaveny podle několika základních schémat. Řadové domy mají obvykle šířku 10,8 m, zatímco délka závisí na počtu sekcí a typu uspořádání bytů.
Typ 2 a Typ 3: Malé byty 1+1, kde rozšíření o další pokoj není možné.
Typ 5: Dispozice 2+1, ale umístění vstupu a nosných stěn neumožňuje rozšíření obývacího pokoje.
Typ 7: Dispozice 2+1 s třemi okny, avšak kvůli umístění vstupu nelze přidat další pokoj.
Typ 8: Ideální pro rozšíření. Byt má dispozici 2+1, přičemž mezi obývacím pokojem a ložnicí je chodba, kterou lze spojit s ložnicí.
Typ 10B: Bodové bytové domy s možností přeměny 3+1 na 3+kk odstraněním příčky. V traktu s balkonem se nachází dva pokoje rozdělené příčkou, která se dá odstranit a vytvořit tak velký obývací pokoj s kuchyňským koutem a přístupem na balkon.
Typ 12: Dispozice 3+1 s čtyřmi okny, kde lze vytvořit 4+kk, ale nutné zachovat samostatný záchod.
Typ 13: Velký byt 4+1, kde přestavba umožňuje přidání místnosti. Místnost by měla sloužit spíše jako pracovna - zpřístupněna z ložnice, aby bylo možné vytvořit samostatné WC a větší koupelnu, která bytu této velikosti více slušela.
Typ 1, 9 a 10: Informace o těchto typech zatím nemám k dispozici.
TYP T06B - KDU - TYP 472 A, 872 A - ŘADOVÁ
Tento typ panelového domu je snadno rozpoznatelný díky tomu, že na každé chodbě najdeme tři byty, z nichž každý má velikost 2+1, což odpovídá původnímu zařazení "typ 5" a "typ 8". Nejvhodnější pro přestavbu je právě "typ 8", a v těchto domech jsou rovnou dva byty tohoto typu na každém patře. 
V případě bytu "typ 5", který se nachází naproti schodišti, je situace složitější. To je způsobeno umístěním instalačního jádra, podélným tvarem půdorysu a dělením prostoru na tři stejně velké sekce. Přesto nabízíme možné řešení i pro tyto byty.
PŮVODNÍ STAV
Typ 8 - dva krajní byty
Typ 8, stejně jako mnoho dalších panelákových bytů, disponuje samostatnou kuchyní, průchozím WC a koupelnou, a několika chodbami. Původní dispozice nepočítá s umístěním pračky, která se nakonec ocitla v koupelně. Balkony, většinou orientované na jih nebo západ, jsou na opačné straně domu než obývací pokoje. To znamená, že pokud máte návštěvu kuřáka, může se na balkon dostat pouze přes ložnici. Umístění úložných prostor do předsíně je velmi obtížné.
Typ 5 - byt naproti schodišti
Na rozdíl od typu 8 obsahuje tento byt neprůchozí WC a menší koupelnu, do které se již nevejde vana. Dveře do WC a koupelny se otevírají do předsíně, což ztěžuje umístění botníku a skříně. Kuchyňská linka je kratší, a do kuchyně se nevejde jídelní stůl. V levé části je opět dlouhá chodba, kde je možné umístit skříň, ale využití je zde velmi neefektivní. Dále se nachází poměrně předimenzovaný pokoj s dvoukřídlými dveřmi, které by se více hodily do obývacího pokoje. V pravé části je obývací pokoj s přístupem na balkon.
NÁVRH ŘEŠENÍ
Základní myšlenka spočívá v tom, že pokud má byt tři okna, může mít i tři pokoje. Nicméně rozmístění nosných panelů může ovlivnit možnost přestavby, zejména pokud by to mělo negativní dopad na statickou stabilitu budovy. V některých případech mohou nosné panely zavětřovat strukturu a tím znemožnit tuto přestavbu. Pokud jsou v bytě příčky o šířce 6-8 cm, není překážkou je odstranit a přeorganizovat místnosti podle plánů.
Je důležité si uvědomit, že i když přidáte pokoj, půdorysná plocha zůstává stejná. Proto nelze splnit všechny požadavky. Dveře do pokojů a koupelny jsou nově široké 70 cm. Doporučuji zvážit menší a multifunkční pračku se sušičkou. Sušičku lze umístit i nad pračku, ale vzhledem k velikosti bytu se může jevit jako zbytečné plýtvání prostorem; místo toho lze nad pračkou umístit další skříňky. V koupelně je vhodné volit co nejkratší záchodovou mísu a sledovat hloubku umyvadla a zrcadlové skříňky. V obývacím pokoji s kuchyňskou linkou berte v úvahu omezený prostor - použijte užší myčku a menší dřez. V předsíni zvolte menší botník, ideálně vertikální s výklopy. Celkově je tedy nutné pečlivě plánovat každý centimetr v celém bytě.
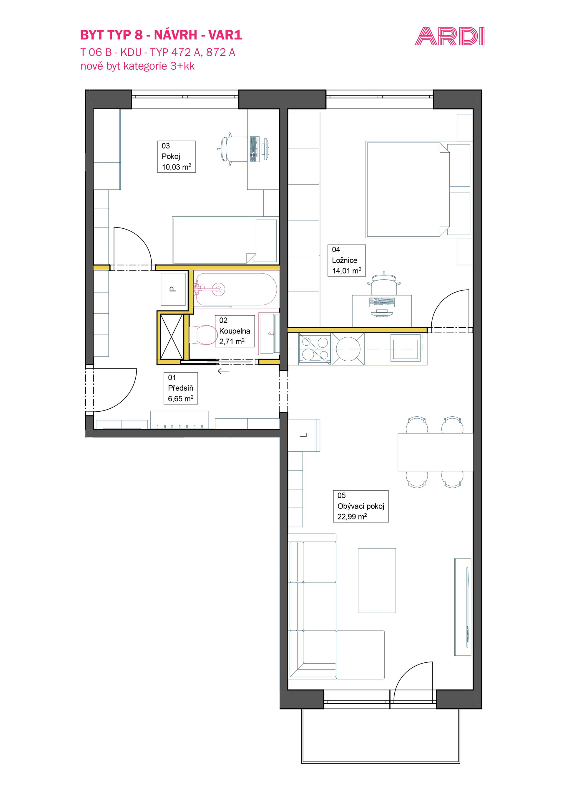
BYT TYP 8 - VARIANTA 1
Vzhledem k velikosti bytu a současným požadavkům jsme vypracovali návrh, který kombinuje obývací pokoj s kuchyňským koutem. Toto řešení umožňuje optimalizovat využití prostoru. Obývací pokoj byl přesunut na jižní stranu, což zvětšilo jeho plochu a propojilo ho přímo s balkonem, čímž získal více světla. Ložnice, nyní přístupná z obývacího pokoje, zůstala téměř stejně velká, umožňující umístění šatních skříní, dvoulůžkové postele a pracovního stolu s počítačem.
Nově přidaná chodba v místě původního WC umožňuje umístění niky na pračku a podél stěny poličky s hloubkou 28 cm. Niku pro pračku jsme navrhli s ohledem na menší hloubku, ale lze zvolit i hlubší variantu. Záchodová mísa byla přemístěna do koupelny, eliminující tak další dveře a uvolňující prostor v bytě. Doporučujeme zvolit posuvné dveře do koupelny, aby byl zachován prostor a pohodlí.
Dále je důležité vzít v úvahu statické aspekty. Nová příčka mezi obývacím pokojem a ložnicí je posunutá, což ovlivňuje zatížení podlahy. Statický posudek doporučuje kotvení této příčky do stěn na obou stranách pro zajištění snížení váhy. Příčky kolem instalačního jádra nemusí být řešeny, protože zde se nacházejí panely s vyšší nosností.
Aby odpad z kuchyně nebyl nutné vést v podlaze, byla vytvořena nízká předstěna pod umyvadlem, odpad z kuchyně je tak vedena touto předstěnou pod vanu a následně dál do jádra. V případě použití podhledu, který umožňuje vedení nové elektriky, jsou zásahy do nosných panelů minimální.
BYT TYP 8 - VARIANTA 2
Základní koncept je stejný - tedy zvětšit obývací pokoj, přesunout k balkonu, přesunout kuchyňskou linku a vytvořit pokoj navíc. Tedy sekce s balkonem zůstává téměř beze změny. V této variantě jsme přehodnotili uspořádání nábytku. Obývací pokoj obsahuje dvě vysoké skříně s vestavnou lednicí namísto volně stojící ledničky, což poskytuje více úložného prostoru. Skříně lze propojit s policemi na obou stranách, vytvářející další úložný prostor pro kuchyň a knihovnu směrem k televizi.

Na rozdíl od první varianty, v této druhé variantě byl začleněn rohový pracovní stůl s počítačem a kratší šatní skříň do ložnice. Hlavním rozdílem je přidání samostatného záchodu a sprchového koutu místo vany. Koupelna je zvětšena, což umožňuje umístění pračky. V této variantě však dětský pokoj mírně zmenšil. Napojení kuchyňské linky a umyvadla na instalační jádro bude složitější - odpady bude nutné vést v podlaze.
BYT TYP 5 - VARIANTA 1
Při úpravě tohoto bytu nelze vytvořit další pokoj. I kdyby se povedlo kuchyň přesunout do bočních sekcí, vzhledem k tomu, že obývák nelze zvětšit, bude se spíše jednat o obytnou kuchyň než o obývací pokoj. Doporučuji proto spíše přesunout koupelnu do boční sekce a zmenšit ložnici. Pračku lze pak umístit na chodbu do vestavěné skříně nebo případně do kuchyňské linky. Díky posunutí koupelny vzniká předsíň, kde je možné umístit botník, věšák a skříň.
Kuchyňskou linku lze navrhnout ve tvaru U, kde část linky bude pod oknem. Je však důležité dbát na výšku parapetu, volit mělčí skříňky a zřídit mřížku pro radiátor. Jídelní kout v této verzi se nachází v obývacím pokoji u okna, s dobrým přístupem díky dveřím mezi kuchyní a obývacím pokojem. Ložnice se zmenšila, dvojlůžko tak nemůže být přístupná z obou stran, ale stále zde zůstává dostatek místa pro šatní skříně a pracovní kout.
Pro snížení nákladů lze zachovat betonovou příčku, dělící ložnici a chodbu, avšak doporučuji ji odstranit a nahradit novou. Je pak možné zde použít posuvné dveře do pouzdra, které nebudou vadit při procházení chodbou. Také bude prostor příjemnější, pokud se chodba zkrátí. Pokud zvolíme dveře do ložnice se sklem, můžeme do chodby vpustit i trochu světla.
BYT TYP 5 - VARIANTA 2
Měl jsem příležitost seznámit se s další variantou bytu, která je velmi podobná předchozí. Rozměry bytového domu i bytu odpovídají T06B - KDU, ale umístění balkonu a několik drobností jsou zde trochu odlišné. Například vchodové dveře do bytu se otevírají zrcadlově, dveře do obývacího pokoje jsou odsunuté od zdi, což umožňuje umístit skříně, a chybí zcela dveře spojující kuchyň a obývací pokoj. Do pokoje jsou použity klasické jednokřídlé dveře místo původních dvoukřídlých. Instalační jádro zůstává na stejném místě, pouze je posunuté cca o 15 cm ve prospěch WC.
Návrh v tomto případě vychází z předchozí varianty, tedy odsunutí koupelny do prostoru ložnice. Kvůli chybějícím dveřím mezi kuchyní a obývacím pokojem bylo nutné vytvořit jídelní kout v kuchyni. Tímto opatřením se však opticky zvětšil obývací pokoj, kde nyní nalezneme pouze jednu funkci. Ve zmenšené předsíni lze stále umístit botník s věšáky a pračku do skříně.
REALIZACE - TYP 8
Dokončené bourací práce
Téměř hotovo
Zabydleno
NÁKLADY NA REKONSTRUKCI
Zcela jistě oceníte i představu o nákladech spojených s rekonstrukcí. Určit přesnou částku je však téměř nemožné, neboť ceny stavebních materiálů a práce jsou neustále v pohybu. Náklady také závisí na míře práce, kterou jste ochotní nebo schopní provést sami, a na výběru prvků pro interiér. Dlažba se dá pořídit za 200 Kč, ale také za 2000 Kč za metr. Mnoho z nás by nezvládl obložit koupelnu, ale poskládat laminátovou podlahu může být skvělá rodinná brigáda. 
Nabízím tedy odhad nákladů ve dvou variantách.

První varianta spočívá v představě, že budete chtít hodně šetřit a zapojíte se také do stavby. Celkově se budete držet plánů uvedených na těchto stránkách, a tak projekt může být typový. Pokud budete mít štěstí, přesvědčíte i úředníky, že statika je již spočítaná, a není nutné to zopakovat. Vyběháte veškeré souhlasy a jednání na stavebním úřadě, nemělo by to být nic složitého. Zůstává tak pouze základní cena za projekt s autorizací a správní poplatek. Při realizaci se hodně projeví vaše ochota a šikovnost. Mnoho věcí zvládnete na stavbě udělat sami; podle tabulky můžete spočítat, kolik ještě dokážete ušetřit. Jako například zbourat Ytongovou příčku pro některé z nás může být přímo zábava. :-) Pokud jde o betonové příčky - i když se tam dá půjčit pila na beton, je nutné dbát na bezpečnost, prašnost a hluk, a proto bych zde raději zvolil cestu zkušenějších pracovníků. Obecně je nutné stěnu rozřezat na kusy a nemlatit do ní palicí, protože vibrace se pak šíří, což může způsobit popraskání okolních stěn. Pokud v bytě nepotřebujete mít štukovou omítku, bude stačit stěny trochu opravit a přemalovat. Není nutné ani zakrývat stropy podhledem; budete tak mít vyšší světlou výšku a ušetříte 40 tisíc. Stačí napojit koupelnu s WC na vzduchotechniku; v kuchyni pak můžete mít cirkulační digestoř s filtrem - ušetříte na rozvodech a na otvoru do nosného panelu. Elektrikářské práce jsou nezbytnost - staré rozvody, vypínače a zásuvky mohou být nebezpečné. Můžete ale ušetřit, pokud si ponecháte původní lustry, lampy... Zařízení koupelny může být drahé, ale dá se najít i levnější kousky, které vypadají pěkně. Obklad a dlažbu můžete ulovit ve slevách; stávající článkové radiátory můžete také zachovat. Vymalovat zcela jistě dokážete sami; barvu opět máte možnost koupit levnou nebo ve slevě. Volně položené linoleum nebo laminátová podlaha by neměly být velkým problémem, takže byste platili opět jen za materiál. Pokud vám stačí levné ocelové zárubně, ušetříte. Samozřejmě pak ale musíte počítat s nižším komfortem na chodbě - dveře do koupelny nebudou do pouzdra. Nová kuchyňská linka má stejnou délku jako ta původní, takže bude stačit tu, kterou máte, nezničit ji a přesunout po stavbě do nové místnosti, včetně spotřebičů.
Druhá varianta představuje cenu za realizovaný, tedy vzorový byt, který můžete vidět na těchto stránkách. V bytě již byla provedena rekonstrukce jádra - pro dokumentaci stávajícího stavu jsme tedy museli tyto změny zaměřit a zakreslit. Návrh dispozice jsme řešili v několika variantách, do výsledného návrhu jsme pak začlenili i konkrétní prvky zařizovacích předmětů ve spolupráci s majiteli bytu. Na byt byl proveden statický posudek, včetně návrhu kotvení nové příčky v obývacím pokoji. Samotná stavba probíhala "na klíč", bez spoluúčasti majitelů.
V bytě jsou nyní nové štukové omítky, sádrokartonové podhledy s bodovým osvětlením a minerální vatou pro lepší odhlučnění, včetně nepřímého osvětlení nad TV. Podlahy byly srovnané samonivelační stěrkou a položena kvalitní PVC podlaha pro velkou zátěž. V koupelně jsou podomítkové baterie, napouštění vany přepadem, velkoformátové obklady a skleněná sprchová zástěna nad vanu - vybavená ruční i hlavovou sprchou. Nové jsou také dveře s obložkovou zárubní a sklem a posuvné dveře do pouzdra.
V obývacím pokoji za televizí se nachází dřevěné obložení ze smrkových latí, v koupelně skříňka nad WC vyrobená na míru. Kuchyňskou linku dodala firma Oresi, včetně spotřebičů. V bytě bylo nainstalováno 22 nových světel, z toho 6 LED panelů nad obývací částí s nastavitelnou intenzitou svícení, 3 nástěnné lampy a jeden designový lustr nad jídelní stůl.
Back to Top