ÚVOD
ARCH
RD
INT
KONTAKT
ÚVOD
ARCH
RD
INT
KONTAKT
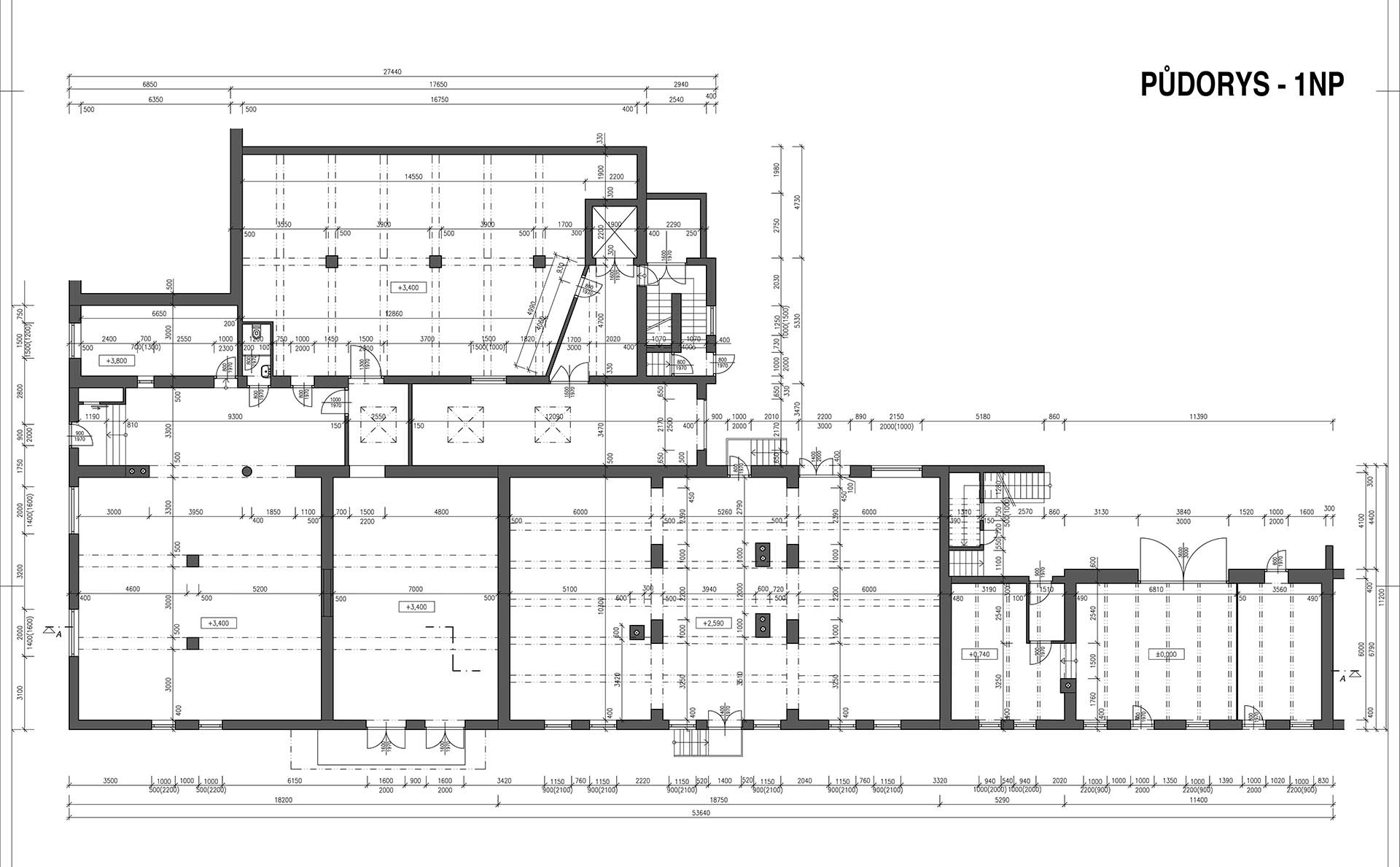
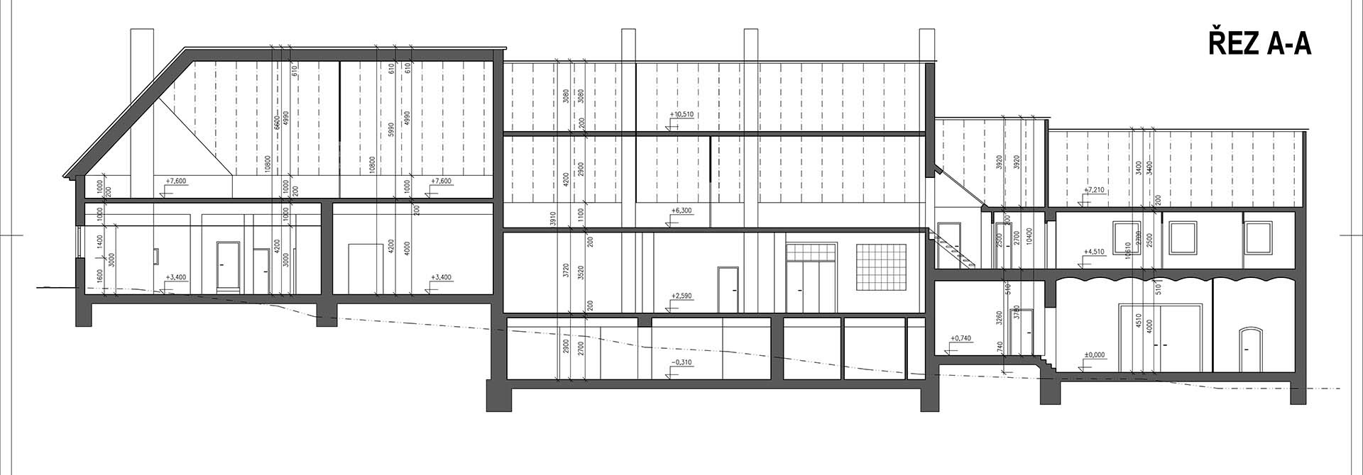
Pasport stavby před demolicí
Zaměření a pasport stavby před demolicí.
Náhledy na stavební výkresy
Mohlo by se vám také líbit
Přístavba - rozšíření verandy
2021
Z HOSPODÁŘSKÉHO STAVENÍ UMĚLECKÝ ATELIÉR
2021
Rekonstrukce domu na ulici Nerudova
2017
Z chléva zahradní ateliér
2025
Pasport stavby - Rokytnice 02
2020
Rekonstrukce domu na ulici V. Nezvala
2021
Rekonstrukce rodinného domu v Sedlaticích
2024
Rekonstrukce domu na ulici U Kuchynky
2016
Novostavba - Dům ve Střížově
2013
Úprava půdy na obytné podkroví v Pokojovicích
2020
↑
Back to Top