Návrh: Ing. arch. Tomáš Tankó

2025 - architektonická studie
Pro projekt zahradního domku s posezením jsme připravili několik variant – od zcela otevřeného řešení, přes částečně kryté, až po plně uzavřený prostor. Každá možnost nabízí jinou míru propojení dvora a zahrady a přináší vlastní atmosféru.
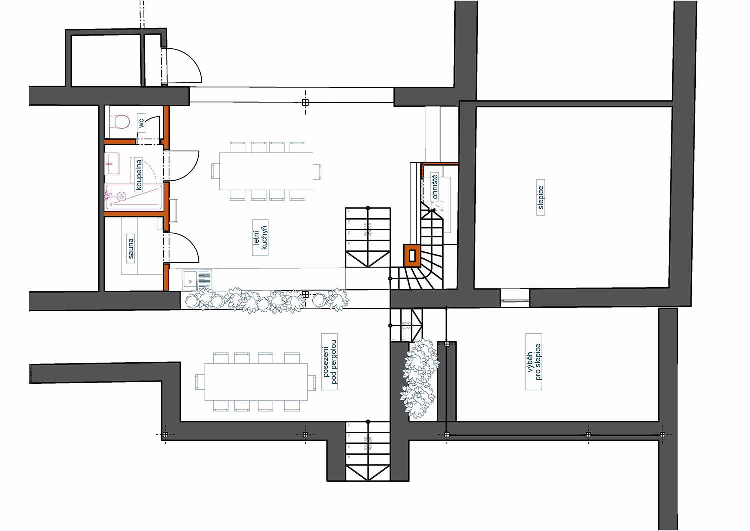
V první variantě jsme snížili úroveň podlahy u posezení o polovinu výškového rozdílu, díky čemuž nevzniká jedno dlouhé propojovací schodiště, ale dvě kratší a pohodlné části. Tím se zároveň podařilo zachovat plynulou návaznost střechy pergoly pod stávající střechou domu - nevznikají tak složité konstrukční detaily. Výsledkem je příjemný vizuální kontakt mezi dvorem a zahradou, a to i při posezení u stolu.
Součástí návrhu je i letní kuchyně a velkorysé ohniště s možností opékání, uzení nebo pečení pizzy. Zvolené materiály jsou v souladu s původní stavbou – staré cihly a kámen ze zbouraných částí, aby prostor působil přirozeně a autenticky.
Na severní straně navrhujeme koupelnu s WC a sprchou, využitelnou v létě i pro návštěvy, a také prostor pro saunu nebo komoru. Do podkroví se poté vejde samostatná ložnice a menší pokoj, který v budoucnu - pokud se střecha zateplí - může sloužit jako jednolůžkový i dvoulůžkový pokoj pro hosty.
Celkový koncept je o spojení tradice a moderní funkčnosti – místo pro společné chvíle s rodinou a přáteli, které je zároveň praktické, útulné a v harmonii s okolní zahradou.
Stav před rekonstrukcí
Otevřená varianta - výkresy
Otevřená varianta - vizualizace
Uzavřená varianta - výkresy
Uzavřená varianta - vizualizace

Mohlo by se vám také líbit

Back to Top