Návrh: Ing. arch. Tomáš Tankó

2024 - architektonická studie
2024 - dokumentace pro stavební povolení
2025 - zahájení stavby
Tento projekt byl opravdu specifický. Poměrně rychle a svižně jsme se s klientem shodli na dispozici a celkovém konceptu řešení. Největší oříšek ale představovalo navrhnout projekt tak, abychom splnili podmínky dotačního titulu Oprav dům po babičce, moc nenaštvali sousedy, vyhověli všem požadavkům stavebního úřadu a zároveň – pokud možno – zachovali pro zemědělskou usedlost krásné číslo popisné 2.
Byl to těžký boj, jistě i se ztrátami na všech stranách, ale bez boje není vítězství. Stavba letos začala a už se nemůžeme dočkat, až se mladá rodina nastěhuje do prostorného nového bydlení. Držíme jim palce!
Architektonická studie
Stav před rekonstrukcí
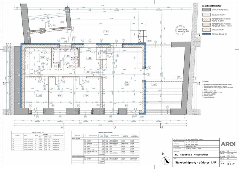
Náhledy na stavební výkresy

Mohlo by se vám také líbit

Back to Top