Tento typ panelového domu je snadno rozpoznatelný díky tomu, že na každé chodbě najdeme tři byty - naproti schodišti malý byt 1+1 (typ 2) a na stranách 2+1 (typ 8) a 3+1 (typ 12). 
Nejvhodnější pro přestavbu je "typ 8", tedy byt 2+1, kde lze vytvořit poměrně velký dětský pokoj, prostornou ložnici a obývací pokoj s kuchyňským koutem, napojený na balkon. 
Povedlo se nám ale zpracovat i byt 3+1 (typ 12) a vytvořit byt 4+kk - hodné pro pětičlennou rodinu. Případně lze také vzniklou místnost navíc využít jako pracovnu - v tom případě by stačil pro byt jeden záchod.
V případě malého bytu "typ 2", který se nachází naproti schodišti, je situace složitější. Byt má celkovou podlahovou plochu pouze 32 m2. Přesto nabízíme možné řešení i pro tyto byty, jak prostor využít trošku lépe.
PŮVODNÍ STAV
Typ 2 - byt naproti schodišti
Tento byt je opravdu velmi malý - celková plocha necelých 32 m2. Dělení ale také není zrovna vhodné. V předsíni je téměř nemožné umístit skříň. Koupelna je minimální, kde je problém umístit samostatné umyvadlo, zároveň je zde ale WC standardní velikosti. Obývací pokoj s rozlohou 16 m2 má sloužit zároveň jako ložnice. Kuchyň s jídelnou je však poměrně velká.
Typ 8 - byt vlevo
Typ 8, stejně jako mnoho dalších panelákových bytů, disponuje samostatnou kuchyní, průchozím WC a koupelnou, a několika chodbami. Původní dispozice nepočítá s umístěním pračky, která se nakonec ocitla v koupelně. Balkony, většinou orientované na jih nebo západ, jsou na opačné straně domu než obývací pokoje. To znamená, že pokud máte návštěvu kuřáka, může se na balkon dostat pouze přes ložnici. Umístění úložných prostor do předsíně je velmi obtížné.
Typ 12 - byt vpravo
Dispozice bytu je 3+1. Předsíň je prostorná, na poměry bytu až předimenzovaná. Vejde se do ní klidně i menší šatna, nebo velké skříně. Zároveň však průchozí WC a koupelna vyžadují přestavbu. Balkon navazuje na ložnici - obývací pokoj je směrem na sever. Pokoje jsou však poměrně velké, takže v případě přerozdělení prostoru není problém vytvořit další místnost.
NÁVRH ŘEŠENÍ
Základní myšlenka spočívá v tom, že pokud má byt tři okna, může mít i tři pokoje. Pro ověření této myšlenky můžeme tvrdit, že toto pravidlo platí i v případě dvou nebo čtyř oken. Nicméně rozmístění nosných panelů může ovlivnit možnost přestavby, zejména pokud by to mělo negativní dopad na statickou stabilitu budovy. V některých případech mohou nosné panely zatěžovat strukturu a tím znemožnit tuto přestavbu. Pokud jsou v bytě příčky o šířce 6-8 cm, není překážkou je odstranit a přeorganizovat místnosti podle plánů.
Je důležité si uvědomit, že i když přidáte pokoj, půdorysná plocha zůstává stejná. Proto nelze splnit všechny požadavky. Dveře do pokojů a koupelny jsou nově široké 70 cm. Doporučuji zvážit menší a multifunkční pračku se sušičkou. Sušičku lze umístit i nad pračku, ale vzhledem k velikosti bytu se může jevit jako zbytečné plýtvání prostorem; místo toho lze nad pračkou umístit další skříňky. V koupelně je vhodné volit co nejkratší záchodovou mísu a sledovat hloubku umyvadla a zrcadlové skříňky. V obývacím pokoji s kuchyňskou linkou berte v úvahu omezený prostor - použijte užší myčku a menší dřez. V předsíni zvolte menší botník, ideálně vertikální s výklopy. Celkově je tedy nutné pečlivě plánovat každý centimetr v celém bytě.
BYT TYP 2 - VARIANTA 1
Dělat z bytu 1+1 byt 2+kk není ideální řešení. Rozměry bytu jsou malé, přestavba proto není zrovna vhodná. Někdy ale prostě není jiná možnost. Pokud si nemůžete dovolit se odstěhovat do většího bytu, ale zároveň byste rádi dopřáli dítěti samostatný pokoj nebo byste chtěli konečně opustit rozkládací gauč a začít spát v klasické posteli, jistě oceníte pokoj navíc.
Koupelna je mírně zmenšena - WC se přesune na místo původní vany, místo WC je pak sprchový kout. Je nutné dbát na hloubku WC a umyvadla, abyste zbytečně neztratili centimetry v prostoru koupelny - byt je malý, v tomto duchu byste měli vybírat i zařizovací předměty. Na druhou stranu sprchový kout je prostorný.
Díky zmenšení koupelny získáme trošku více místa v předsíni, kde už tak je dostatek místa pro umístění velké skříně, poliček, nebo třeba jako v návrhu - pračky do skříně.
Pokoj má téměř minimální rozměry, ale vejde se zde i užší dvoulůžková postel o rozměrech 140 x 200 cm, pracovní stůl i skříň.
Do obývacího pokoje je nově přesunuta malá kuchyňská linka. Nová linka bude však potřebovat i nové rozvody vody a odpadu. Proto jsou dveře do pokoje umístěny z boku, aby příčka mezi předsíní a pokojem byla nejdelší. Odpad je možné tak vést v této příčce až do vzdálenosti cca 1,8 m od jádra. Zbytek bude nutné vést v podlaze, případně zvýšit podlahu o několik centimetrů, pokud je to nutné.
Obývací pokoj je pak nábytkovou sestavou rozdělen na dvě zóny - obývací s gaučem, šatní skříní a TV, a na zónu kuchyně s jídelním stolem a linkou.
BYT TYP 2 - VARIANTA 2
V druhé variantě dispozice zůstává 1+1, tedy obývací pokoj s roztahovacím gaučem a samostatná kuchyň s jídelnou. I zde navrhujeme předělat koupelnu - umístit sprchový kout místo WC a přidat tak kousek místa v předsíni. Tím získáte více prostoru pro skříně. V kuchyni navrhujeme linku rozšířit po celé boční stěně, kde pak mohou být zakomponovány vysoké skříně se spotřebiči, včetně pračky.
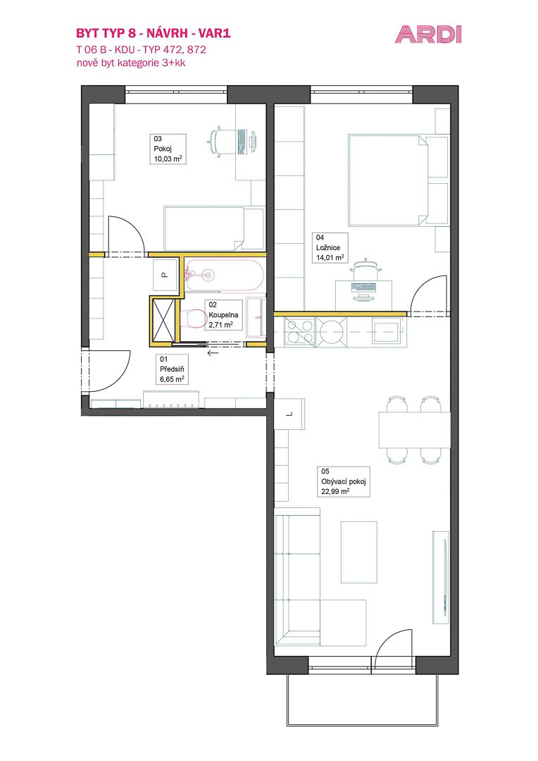
BYT TYP 8 - VARIANTA 1
Vzhledem k velikosti bytu a současným požadavkům jsme vypracovali návrh, který kombinuje obývací pokoj s kuchyňským koutem. Toto řešení umožňuje optimalizovat využití prostoru. Obývací pokoj byl přesunut na jižní stranu, což zvětšilo jeho plochu a propojilo ho přímo s balkonem, čímž získal více světla. Ložnice, nyní přístupná z obývacího pokoje, zůstala téměř stejně velká, umožňující umístění šatních skříní, dvoulůžkové postele a pracovního stolu s počítačem.
Nově přidaná chodba v místě původního WC umožňuje umístění niky na pračku a podél stěny poličky s hloubkou 28 cm. Niku pro pračku jsme navrhli s ohledem na menší hloubku, ale lze zvolit i hlubší variantu. Záchodová mísa byla přemístěna do koupelny, eliminující tak další dveře a uvolňující prostor v bytě. Doporučujeme zvolit posuvné dveře do koupelny, aby byl zachován prostor a pohodlí.
Dále je důležité vzít v úvahu statické aspekty. Nová příčka mezi obývacím pokojem a ložnicí je posunutá, což ovlivňuje zatížení podlahy. Statický posudek doporučuje kotvení této příčky do stěn na obou stranách pro zajištění snížení váhy. Příčky kolem instalačního jádra nemusí být řešeny, protože zde se nacházejí panely s vyšší nosností.
Aby odpad z kuchyně nebyl nutné vést v podlaze, byla vytvořena nízká předstěna pod umyvadlem, odpad z kuchyně je tak vedena touto předstěnou pod vanu a následně dál do jádra. V případě použití podhledu, který umožňuje vedení nové elektriky, jsou zásahy do nosných panelů minimální.
BYT TYP 8 - VARIANTA 2
Základní koncept je stejný - tedy zvětšit obývací pokoj, přesunout k balkonu, přesunout kuchyňskou linku a vytvořit pokoj navíc. V této variantě jsme přehodnotili uspořádání nábytku. Obývací pokoj obsahuje dvě vysoké skříně s vestavnou lednicí namísto volně stojící ledničky, což poskytuje více úložného prostoru. Skříně lze propojit s policemi na obou stranách, vytvářející další úložný prostor pro kuchyň a knihovnu směrem k televizi. Ložnice je mírně zmenšená na minimálních 12 m2, což umožní další rozšíření obývacího pokoje a vytvoření kuchyňské linky ve tvaru L. 
Na rozdíl od první varianty, v této druhé variantě byl začleněn rohový pracovní stůl s počítačem a kratší šatní skříň do ložnice. Hlavním rozdílem je přidání samostatného záchodu a sprchového koutu místo vany. Koupelna je zvětšena, což umožňuje umístění pračky. V této variantě však dětský pokoj mírně zmenšil. Napojení kuchyňské linky a umyvadla na instalační jádro bude složitější - odpady bude nutné vést v podlaze, případně pod sprchovým koutem.
BYT TYP 12 - VARIANTA 1
Byt s dispozicí 3+1 má 4 okna, takže nic nebrání tomu, abychom zde vytvořili místnost navíc. Předsíň je prostorná a umožňuje rozšíření koupelny. Ve variantě 1 jsme dokonce umístili do bytu 2 záchodové mísy - jeden samostatný záchod a druhý v koupelně. Navržená dispozice 4+kk tak splňuje normy pro pětičlennou rodinu. V koupelně je dostatek místa pro umístění velké vany o rozměrech 180 x 80 cm, klasické pračky, umyvadla a topného žebříku pro ručníky. Z předsíně vedou dva dětské pokoje - jednolůžkový směrem na sever a dvoulůžkový směrem na jih. Ložnice v této variantě má minimální rozměry 12 m2, ale umožní umístění pracovního stolu s PC - na úkor šatních skříní. Díky zmenšení ložnice je zvětšen obývací pokoj, což umožní rozšíření kuchyňské linky o vysoké skříně, například s vestavnou troubou a lednicí.
BYT TYP 12 - VARIANTA 2
V druhé variantě jsme navrhli jenom jeden, samostatný záchod. V koupelně místo vany je sprchový kout a menší pračka. Zároveň jsme ale zachovali prostornou předsíň, kde je možné vytvořit mnoho úložného prostoru. Vzhledem k tomu, že v bytě je pouze jeden záchod, nová místnost by měla sloužit jako pracovna. Není pak potřeba umístit pracovní místo do ložnice, kde tím pádem šatní skříně mohou být po celé šířce místnosti.
REALIZACE - TYP 8
Dokončené bourací práce
Téměř hotovo
Zabydleno

Mohlo by se vám také líbit

Back to Top